1150 Ventura Boulevard 62ACamarillo, CA 93010



Mortgage Calculator
Monthly Payment (Est.)
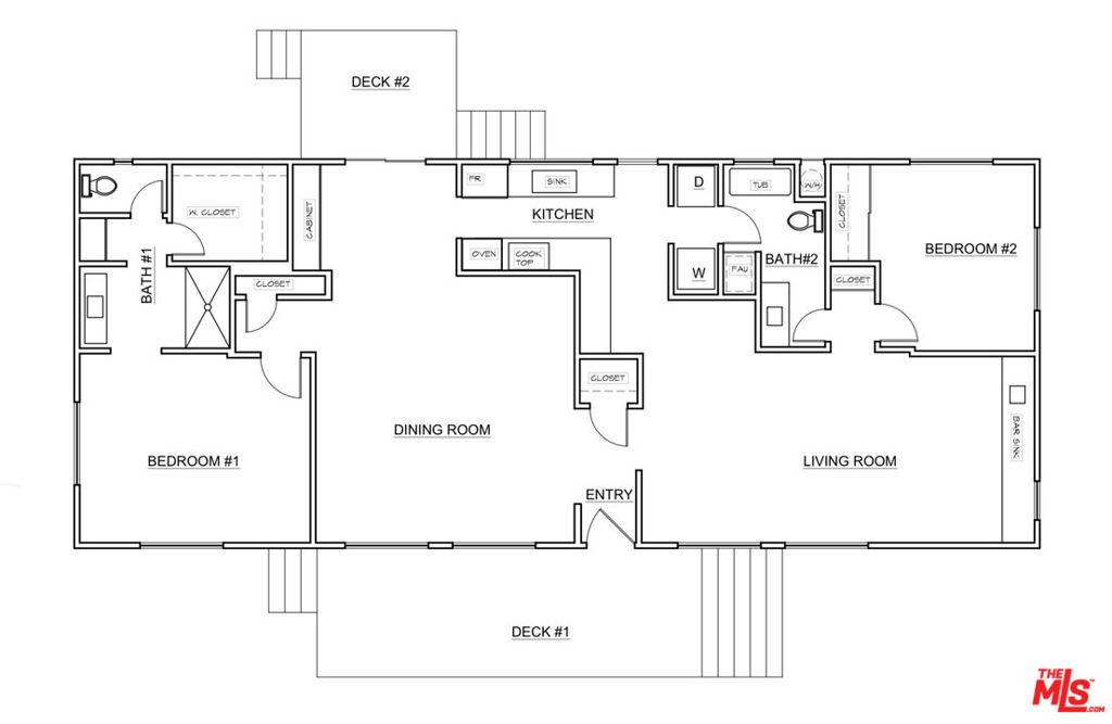
$954Photos coming soon! Camarillo Mobile Estates is a wonderful 55 + gated community close to old town Camarillo, shopping, the Outlets, banks, restaurants, and features mobile security patrol within the neighborhood. Features daily Camarillo trolley service to old town Camarillo, local shopping centers, premium outlets, metro link and Dizdar park if you do not want to drive. This spacious 1440 sq ft open floor plan has 2 bedrooms + 2 bathrooms allowing many ways to use the interior space. Just completed interior/exterior renovation with many amenities! Desirable corner lot is private and functional with usable outdoor space. Hedges border the property for privacy while allowing three access doors into the home. Conveniently located next to guest parking, community pool + spa + clubhouse + fitness room. Split floor plan, the primary bedroom is on one side and the second bedroom is on the other side offering privacy for the occupants. The living room features a bar sink with built-in cabinets. There are two dining areas. The larger dining area could easily be converted into an additional room. The home has been substantially upgraded featuring Milgard dual pane windows and sliding door, new wide plank luxury engineered wood flooring, new Decora switches + outlets, architectural wall plates, cable outlets, all new LED lighting, crystal chandeliers, LED lighted ceiling fans, custom flush mount wood floor vents, newly resurfaced roof with 10 year elastomeric coating, upgraded ceiling insulation, new exterior + interior paint, new porch, deck and steps. The kitchen is in the center of the home featuring a commercial style faucet with sprayer, reverse osmosis filtered water, soap dispenser, gas cooktop, gas wall oven and direct access to the deck and outdoor BBQ. Bathrooms upgraded with Calacatta marble vanities, Waterworks faucets, Kohler recessed medicine cabinets, Kohler and Toto toilets plus rain shower heads and hand held body sprayers in the showers. The primary bathroom suite has a large walk-in glass shower with wheelchair access, private water closet, large walk-in closet and vanity counter with storage. Laundry area is next to the kitchen with built-in cabinets. Tons of storage with built-in cabinets and closets throughout the home. Additional storage underneath the deck plus a large storage shed in the carport. One unique feature is the oversized carport which is 12 feet high and can accommodate a tall van, cargo trailer, boat or RV. Dog play area on the side yard featuring turf for convenience and easy maintenance. Crawl space has been renovated, cleaned, including painting of the steel piers + beams and upgraded hurricane anchors and tie-downs. Space rent is $2,060 per month and includes trash service, community pool + spa, clubhouse, gym, dog park and mobile patrol security throughout the neighborhood. Benefit to a home built before July 1, 1980 there are no property taxes, only VLF fees which are $75 per year. Loans are available on homes built before 1980 from certain lenders.
| yesterday | Listing updated with changes from the MLS® | |
| a week ago | Listing first seen on site |
This information is for your personal, non-commercial use and may not be used for any purpose other than to identify prospective properties you may be interested in purchasing. The display of MLS data is usually deemed reliable but is NOT guaranteed accurate by the MLS. Buyers are responsible for verifying the accuracy of all information and should investigate the data themselves or retain appropriate professionals. Information from sources other than the Listing Agent may have been included in the MLS data. Unless otherwise specified in writing, the Broker/Agent has not and will not verify any information obtained from other sources. The Broker/Agent providing the information contained herein may or may not have been the Listing and/or Selling Agent.

Did you know? You can invite friends and family to your search. They can join your search, rate and discuss listings with you.